Class Project (ME 263) to eliminate desk clutter caused by mobile devices

Goal: Eliminating Mobile Device Desk Clutter

Messy desks are common to college students, office workers, and homes alike. With the advent of mobile devices that are commonly charged at desks, the team suspected that cables would contribute to the clutter. After conducting market research and surveying a target demographic, we concluded that a solution for removing cable clutter is necessary.

Design Process

Early Concept Sketch

  1. Defined requirements & constraints: Used survey data and market analysis to identify key problems (cable clutter, limited outlets, space usage) and set quantitative/qualitative requirements for the product.

  2. Generated and selected concepts: Created multiple design concepts using functional decomposition and decision matrices, then combined best features into a final concept emphasizing retractable cables, wireless charging, and user safety.

  3. Detailed design & validation: Developed full CAD assembly and part drawings, applied tolerance stack-ups, and ran engineering analyses (structural simulations in ANSYS) to confirm stability and durability.

  4. Prototyped and tested: Built a medium-fidelity prototype using 3D printing and wood components, validated functionality, and compared performance against market benchmarks.

My Contributions

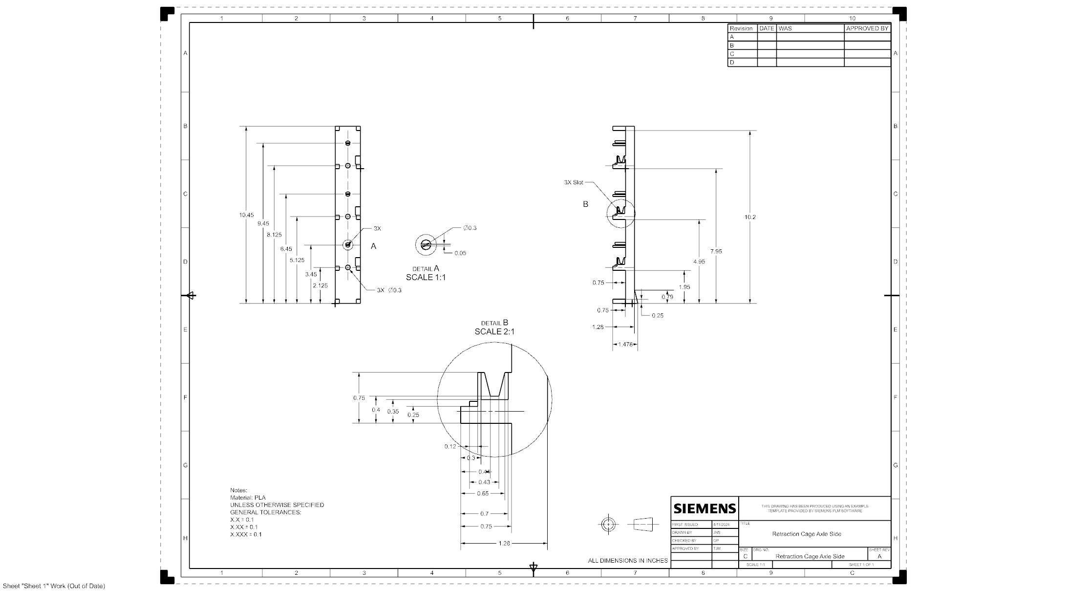
Engineering Drawing of Retraction Cage (Axle Side)

I worked on various parts of the four design steps including:

  • Conducting market research and interpreting survey data

  • Generating concepts, making decision matrix

  • Using Siemens NX to model and create working drawings of retractable cage, wheels, and most of the base.

  • 3D-printing retraction cage, wheels, and base from PETG

Prototype

Desk Organizer Prototype

A full-scale medium-fidelity prototype to demonstrate form and function of idea with:

  • 3D-Printed body and retraction cage

  • Pine shelves and outer housing

  • Test cable retraction system without torsion springs

  • Wireless watch charger slot on top

Desk Organizer Prototype without Cable Cover

Previous
Previous

Nerf Gun Robot V1